Extension d’une maison de ville

  • Commande privée
  • Type : Logement
  • Localisation : Bordeaux
  • Architecte mandataire : Ugo Le Corre
  • Statut : Etudes en cours

Cette extension contemporaine en structure bois vient enrichir une maison de ville existante en créant 3 niveaux supplémentaires. Architecturalement, le parti pris affirme un contraste assumé : face à la pierre calcaire claire de la maison traditionnelle, l’extension se distingue par un habillage métallique noir et de larges surfaces vitrées. Ce dialogue entre ancien et contemporain crée une composition architecturale dynamique et élégante.

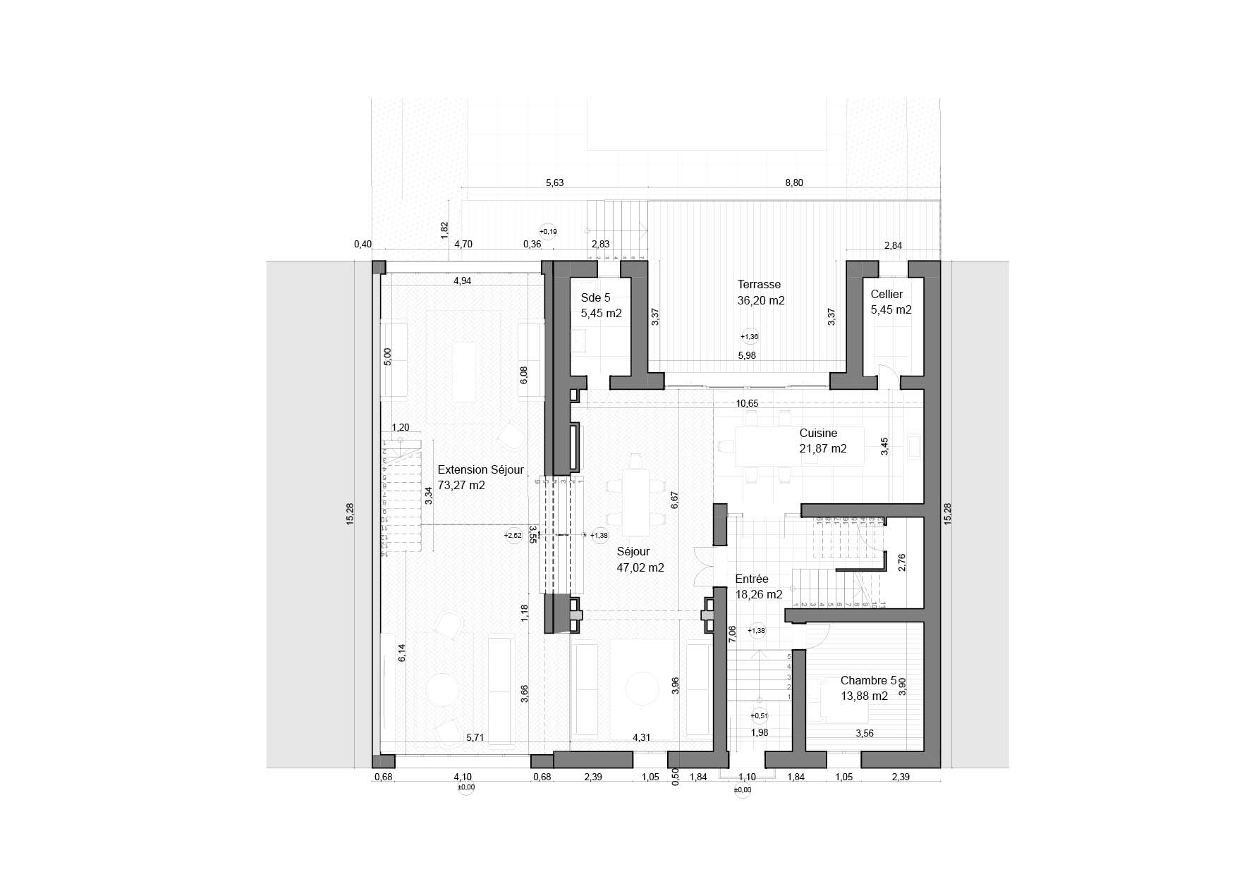
RDC

Le niveau d’entrée accueille un espace de stationnement, répondant aux contraintes urbaines et facilitant le quotidien des habitants. Le premier étage constitue le cœur du projet avec la création d’un salon traversant baigné de lumière naturelle. Sa généreuse double hauteur confère volume et caractère à cet espace, qui communique harmonieusement avec le salon de la maison existante. Cette continuité spatiale crée un lieu de vie ouvert et fluide, où l’ancien et le nouveau dialoguent avec élégance.

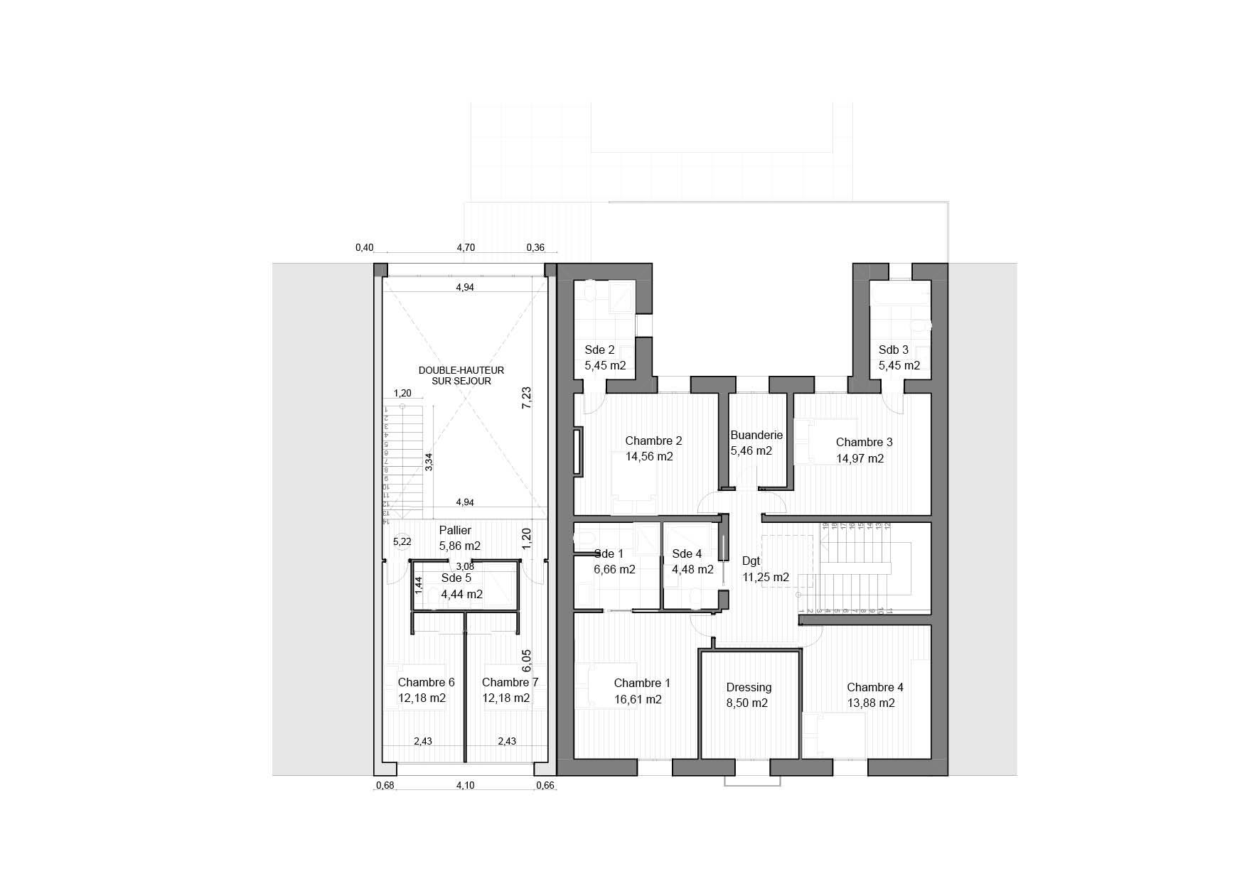
R+1

Le second étage accueille deux chambres et une salle de bain, formant un espace nuit confortable et intime. Ces pièces bénéficient de la luminosité apportée par l’orientation traversante de l’extension.

Le choix d’une structure bois s’inscrit dans une démarche environnementale responsable. Ce matériau offre de nombreux avantages : rapidité d’exécution, légèreté structurelle adaptée à l’extension, excellentes performances thermiques, et esthétique contemporaine. La construction bois permet également de minimiser les nuisances de chantier, paramètre essentiel en milieu urbain dense. Cette extension verticale enrichit la maison de ville d’espaces généreux et lumineux, tout en affirmant une identité architecturale contemporaine respectueuse de son environnement urbain.

Coupe transversale

Façade sur rue

Façade sur jardin

La séjour existant s’ouvre sur une un nouveau volume

Une extension du séjour traversant en double-hauteur qui donne sur le jardin, au nord-est.