
Rénovation d’une maison de ville
- Commande privée
- Type : Logement
- Localisation : Bordeaux
- Architecte mandataire : Ugo Le Corre
- Statut : Etudes en cours
Le Projet
Cette rénovation complète transforme une maison de 150 m² en repensant entièrement sa distribution et son confort. Le projet valorise les volumes existants tout en créant de nouveaux espaces de vie adaptés aux besoins contemporains.
Le rez-de-chaussée, initialement composé d’un garage et de pièces sous-utilisées en mauvais état, fait l’objet d’une transformation radicale. Nous créons une véritable suite parentale incluant chambre, salle de bain et dressing, offrant ainsi un refuge intimiste au cœur de la maison. Une buanderie fonctionnelle vient compléter ce niveau, optimisant l’organisation quotidienne.
L’intervention majeure à l’étage consiste à échanger la position de la cuisine avec l’une des chambres. Cette redistribution permet de créer une cuisine ouverte sur le séjour, transformant cet espace en un véritable cœur de vie convivial et lumineux. Un nouvel escalier extérieur, accessible depuis le balcon, établit une connexion directe entre le séjour et le jardin, prolongeant l’espace de vie vers l’extérieur et créant une circulation fluide. Les trois chambres, la salle de bain et les sanitaires font également l’objet d’une rénovation complète.

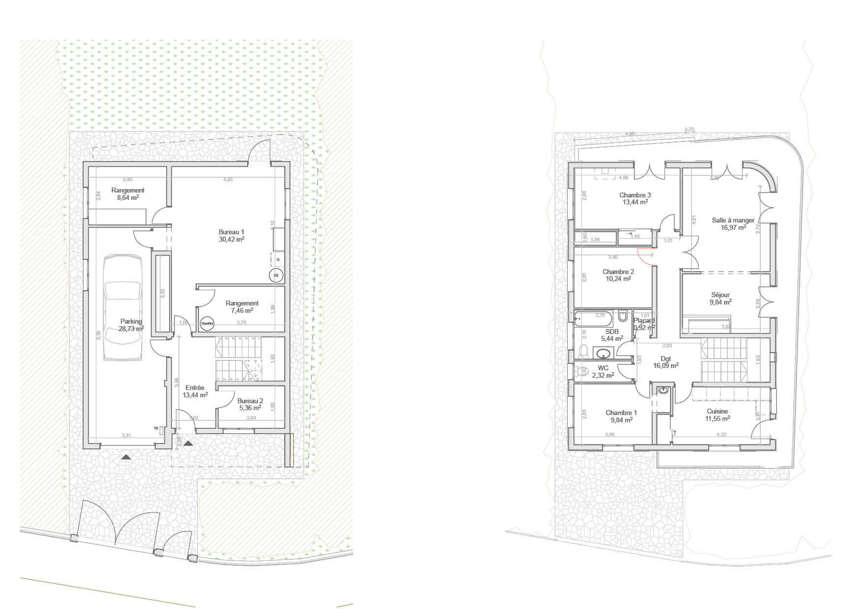
Plans de l’existant – RDC et R+1

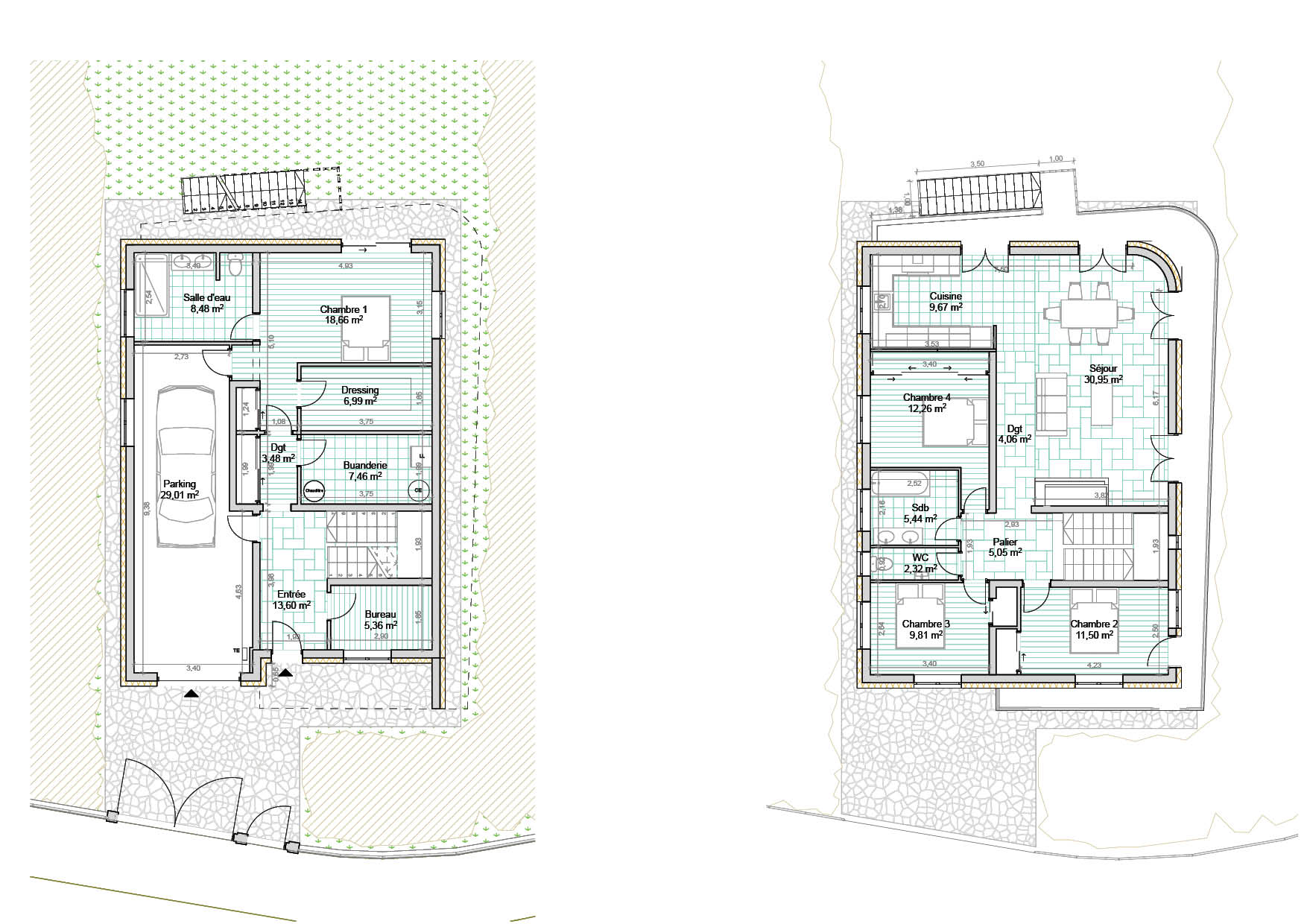
Plans projet – RDC et R+1
Le projet intègre une refonte totale de l’isolation thermique de l’ensemble du bâtiment et le remplacement de toutes les menuiseries extérieures, garantissant confort acoustique, performances énergétiques optimales et réduction significative de l’empreinte carbone de l’habitation.Cette rénovation globale redonne vie à une maison en créant des espaces fonctionnels, confortables et harmonieux, parfaitement adaptés aux modes de vie actuels tout en préservant le charme d’une maison avec jardin.



