
Résidence inter-générationnelle à Évry (91)
- Type : Commande privée
- Programme : Logements sociaux et commerces
- Maître d’ouvrage : Essonne Habitat
- Architecte mandataire : Ateliers Lion
- Poste : Architecte chargé de projet
- Statut : Livré, 2024
Le Parc aux Lièvres
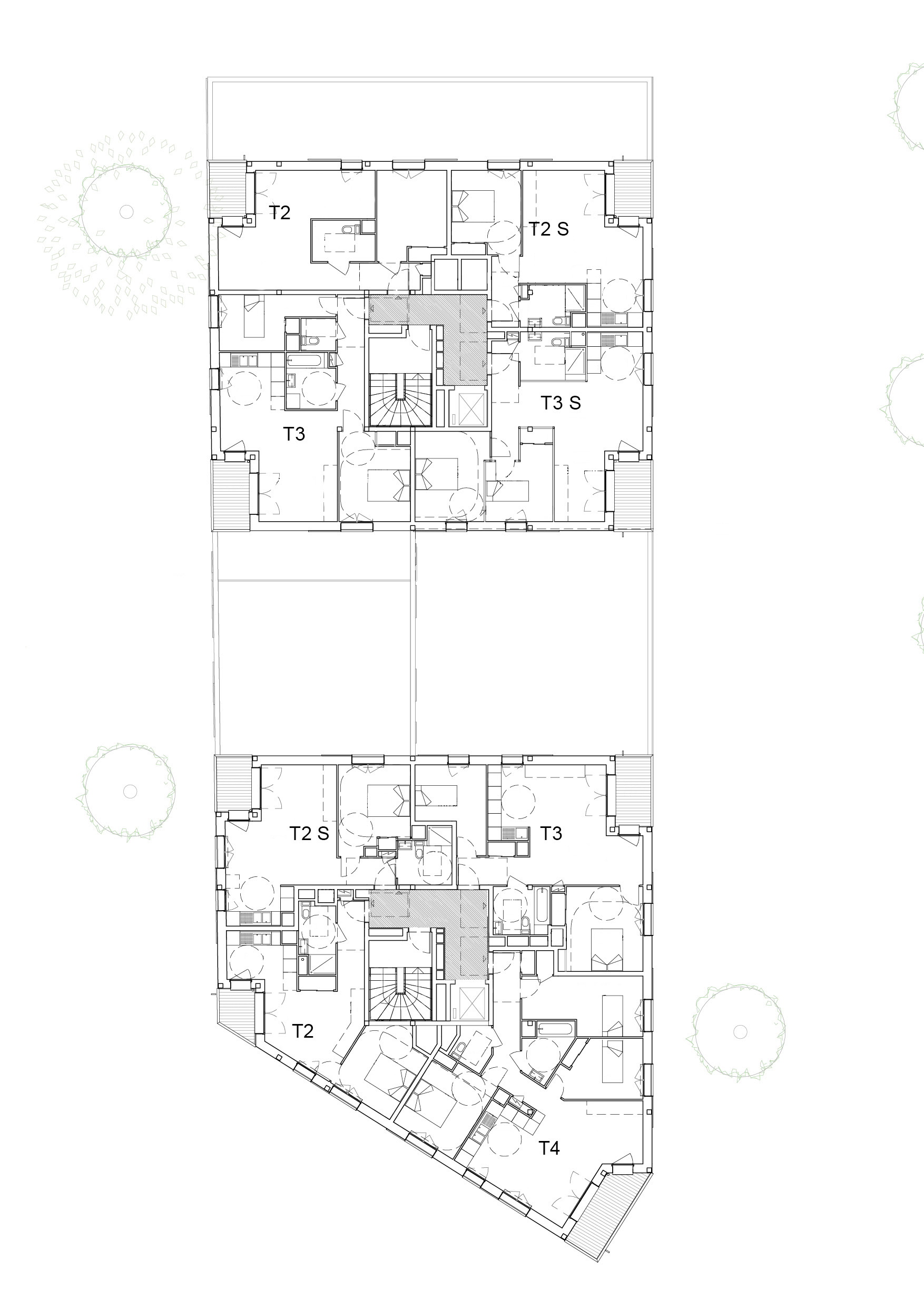
Le projet consiste en la construction d’un ensemble immobilier de logements neufs, d’une PMI, et de trois commerces à Évry (91) dans le cadre de la ZAC du Parc aux Lièvres. Ce projet entre dans la cadre du projet de renouvellement urbain du Sud d’Évry et dans l’opération d’aménagement du Parc aux Lièvres / Bras de Fer. Il permet de reloger les habitants dont les logements seront démolis par les travaux de la ZAC ainsi que les commerces de la dalle du Parc aux Lièvres, eux aussi démolis. Le bâtiment comprend 42 logements à caractère social, regroupés sous la forme d’une résidence intergénérationnelle composée pour moitié de logements destinés aux seniors et pour l’autre de logements familiaux. La résidence propose également une salle d’activités à rez-de-chaussée.

Organisation spatiale
Le projet entend répondre aux constructions voisines par le jeu des épannelages qu’il propose en lien avec le caractère mixte des tissus qui l’entourent. L’édifice présente un fractionnement en deux plots dont chacun des angles propose des balcons qui participent au caractère individuel de chaque logement. Chaque partie du programme bénéficie d’un adressage clair : entre la partie logements desservie par le cœur d’ilot et la partie commerces et activités à rez-de-chaussée desservie par les rues qui bordent l’opération tandis que l’accès au parking souterrain est accessible depuis la rue. L’organisation des masses bâties et des parkings affirme un alignement sur les limites nord et ouest avec les espaces publics pour l’implantation des commerces et des activités. Cette organisation permet de dégager un espace vert à l’arrière qui participe au traitement paysager en limite avec les opérations voisines et permet un espace vert extérieur plus facilement appropriable pour les usagers de la résidence.


Architecture
La volumétrie reprend les principes développés dans le cadre de la ZAC. L’expression d’un socle d’activités et de commerces très vitré, qui dialogue avec les rues et conforte ainsi l’animation du quartier autour de la future place du Parc aux Lièvres. Le fractionnement des volumes permet de démultiplier les terrasses accessibles dans la continuité des logements. L’expression architecturale d’ensemble se veut sobre et atemporelle. Un ensemble de cadres métalliques entourent les baies sur allèges tandis que les séjours, principalement aux angles, ouvrent généreusement sur les balcons dont bénéficient la plupart des logements.




