
Restructuration d’un appartement
- Commande privée
- Type : Logement
- Localisation : Paris XVIII
- Architecte mandataire : Ugo Le Corre
- Statut : Livré – 2024
Contexte
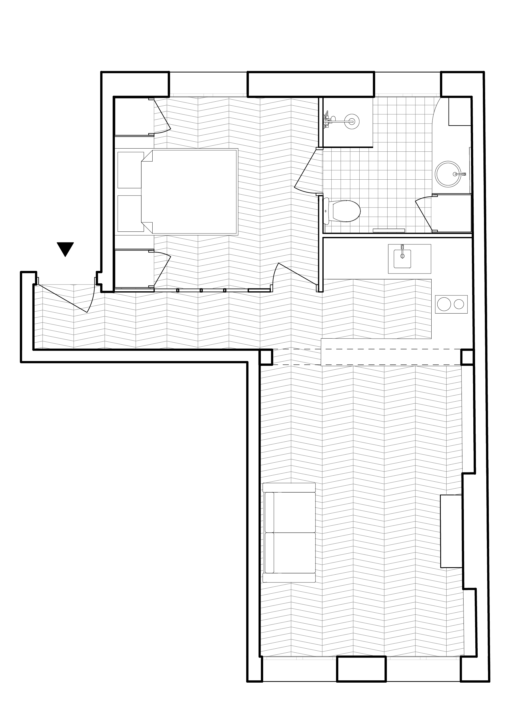
Un appartement de 50m2, dans le XVIIIe arrondissement de Paris. Résultat d’une division d’un logement plus grand dans le passé, il n’offre pas un cadre de vie agréable et fonctionnel. Il possède pourtant des qualités indéniables : C’est un appartement traversant qui donne d’une part sur la rue et d’autre part sur la cour de l’immeuble. Sa pièce sur rue accueille un parquet, des moulures au plafond ainsi qu’une belle cheminée, les attributs d’un ancien séjour en enfilade.


avant / après
Qualités du logement & projet
Le projet s’appuie sur les qualités existantes du logement : le caractère traversant est renforcé par l’implantation d’une cuisine ouverte, la création d’un axe dégagé de façade à façade ainsi que l’installation d’une verrière qui permet d’illuminer le couloir d’entrée. Ainsi la pièce sur rue, avec sa cuisine attenante, peut redevenir séjour, l’espace séjour-cuisine devient plus spacieux et fonctionnel. La chambre s’installe côté cour avec sa salle de bain, elle aussi baignée de lumière naturelle.













